地址:张家港市乐余镇兆丰路197号
电话:86-0512-58662585
传真:86-0512-58661618
联系人:茅经理
手机:013906246830
邮箱:leyujd@163.com
网址:www.leyujd.com
电话:86-0512-58662585
传真:86-0512-58661618
联系人:茅经理
手机:013906246830
邮箱:leyujd@163.com
网址:www.leyujd.com
产品中心/PRODUCTS
PSB600型平板离心机
添加时间:2023/6/27 9:40:34 人气:8110
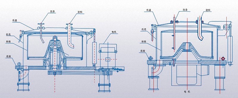
主要特点
1.采用变频器启动,启动平稳,分离因数可调。
2.减震方式,采用高粘度液体阻尼油减震。
3.结构设计合理,有效的消除了卫生死角,结构件过渡圆滑,表面经抛光处理,外部结构件,紧固件和转鼓都采用不锈钢制造。外元为翻盖式,可对离心机外壳与转鼓夹层空间进行彻底清洗。
4.配置清洗喷淋系统,可对离心机进行在线清洗,对离心机外壳内壁,转鼓内外表面,集液槽表面等离心机内部不可见部位进行清洗。符合GMP规范中对设备的要求。
5.结构简单,操作维修方便。
6.晶粒不易破碎。
7.配置氮气保护系统,保证离心机内腔与外部空气隔离。
8.通用性强,适用范围广。
9.密闭结构,密封件米用硅橡胶或氟橡胶。可实现密闭防爆要求,适合于有毒和易燃、易爆场合的应用。
产品结构示意图
订货须知
1、技术参数以产品说明书为准。
2、洽询时,请顾客详细赐告物料特性参数及工况条件要求。
3、根据顾客的特殊需要,我们可以采取个性化的设计与制造:
材质:物料接触部分材质可为普通不锈钢、特殊不锈钢、铝合金或钛合金等。
揭盖方式:可采用油缸、气缸、电动缸或机械平衡器等。
可按GMP规范设计、制造。
可商定其它技术要求。
主要技术参数
